Space Planning Tips
Beach Front Penthouse Interior Design | Bondi Beach

My name is Alex Lee and I am from Nu Infinity. In this episode, we’re going to share how we transformed this beach front home through space planning.

The client shared, “My vision was to have my workspace with a nice view, and in that same space have my living room, my gym, and my gaming sort of area all in the one area. So, normally it’s very hard to get a really big space with a big view.”

In this episode, we’re going to share how we transformed this home through space planning. Rather than dividing the space into smaller rooms, the client wanted an open layout dedicated to wellness and relaxation. A home that fully embraces the breathtaking views. We reimagined the entire space, drastically changing the layout from this to this.

Set against Bondi Beach, Australia’s most iconic beach, this Sydney home designed by Nu Infinity maximizes the panoramic views. In the living area, we are greeted by floor-to-ceiling windows wrapping around the uninterrupted view of Bondi Beach. We chose a dark colour palette with white ceilings to stage an ever-changing scenery as the focal point. A sectional sofa anchors the space, positioned towards the sweeping view.

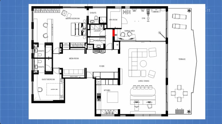
So the client’s brief was to create a wellness centre that gets to engage with this view. This is where the home was facing Bondi Beach. So what we did here was to move the master bedroom to the back. The moment we demolished the master bedroom that was facing up front of the view, we turned this part here into a sauna area, and we added a gaming area here and a gym area over here. We would have an unblocked view from the sauna looking out to the view of Bondi. And due to privacy, there was a sliding door that separates this wellness area from the entire living area.


Thoughtful space planning defines each zone with different functions, while the wooden ceilings and floors create a subtle visual distinction from the main living area.

So one of the challenges was we didn’t want to have an obstructed view of the entire Bondi Beach. So it didn’t make sense for us to actually have a TV cabinet that obstructs the entire living area. Instead of putting a TV cabinet right here, we managed to conceal a retractable TV up in the ceiling. And this is how it looks like. So when we needed to enjoy the entire view of Bondi Beach, the entire TV is tucked right in the ceiling. And when we need to enjoy watching the TV, the entire TV could be retracted down.

While planning an open floor layout, understanding the client’s daily routine and how they move about the space is really crucial. By mapping neutral pathways, we ensure ample space to move around efficiently and comfortably.

For the dining and home office, we thoughtfully designed this space to create cohesion while maintaining distinct zones for entertainment and productivity. So the original dining area was bulky and it was supposed to be taking up the entire space.

So what we did here was to re-optimize how we wanted this dining area to look like. So we created a narrower dining profile which could accommodate a bench seating, and at the back of the bench seating, we created two study tables. By positioning the two study tables at the rear, optimizing the entire dining area to have a second purpose.

In contrast to the other spaces, the kitchen embraces a light palette with white marble surfaces. A warm yellow splashback adds depth and a dramatic touch.

One of the most overlooked areas in homes is the corridors, often left underutilized. Instead of wasting the space, we transformed it into a stylish entertainment area.

So while doing space planning, something that is very, very crucial for us to really understand is how to separate between the active part of the home and the quiet part of the home. One of the main reasons why we moved the master bedroom to the back and leave the open living at the front—this is one of the reasons. If you look into space planning, we kept this part of the home as an open plan.

This part of the home, where we call the quiet zone—the red part of the house—is not accessible to public. And then the orange part of the house is where you have guests, you can cater for family, you can cater for friends. If you put the master bedroom at this part of the home where the initial space is, what’s going to happen is you have restricted the entire open living to be half the size smaller than it actually is. So that is one of the major understandings of how crucial space planning actually matters.


So now we step into the private side of the home. The initial two bedrooms at the rear were converted into one master bedroom. So after demolishing the wall, there were also two bathrooms, because there were two bedrooms. So one bathroom over here and a second bathroom over here. So instead of having a basin that has a his and hers, what we did was we remain two bathrooms and have one for the him and one for the her.


And to optimize the space planning, after the wall was demolished, we turned the left side of the bedroom into a walk-in closet concept. So there’s a dressing table over here and a walk-in closet over here. We chose a glass divider to allow natural light to filter through. At night, the fireplace and ambient lighting transformed the room, creating a dramatic yet cosy atmosphere.

Lastly, for the guest room—because there is insufficient bedrooms now in the unit due to the resize of the open floor plans—so keeping one guest room would always be a better alternative. But to put a bedroom and not using the room most of the time doesn’t really make sense. So we came up with the idea of a Murphy bed.

So what’s a Murphy bed? A Murphy bed is a bed that can be retracted back into the carpentry work. We designed a carpentry that tucks the bed basically into the wall and makes the entire bedroom, or the guest room, look like a work studio. So the client has a large work studio that they could use for a home office. When there are guests coming over to stay, the entire work studio turns into a guest room.


The challenge was how do we connect two entirely different layouts to be connected to each other? So in Nu Infinity, we believe in a term called “altering the ego of practicality.” And this is coming up next in Stage 2. Stay tuned for Part Two.

One of the most beautiful parts of being an interior designer is the people we meet—each with unique personalities, diverse backgrounds, fascinating interests, and inspiring stories. At Nu Infinity, we feel incredibly grateful and humbled to have the opportunity to design for clients from all around the world. It is truly an honor to represent Malaysian design on the global stage.

The challenges we face aren’t always about distance or time zones. Often, it’s about learning to adapt, embracing different materials, climates, and cultures. But through these challenges, we’ve discovered our strengths, deepened our passion, and grown even closer to the heart of why we love what we do.

To our supporters, clients, friends, and partners—thank you. This series is our way of sharing to the world, through our eyes, what we see, what we experience, and what we learn.
About the Creator
Design Seed
A Design & Architecture channel sharing stories, insights and tips. Featuring extraordinary & amazing homes & properties all over Malaysia and globally!




Comments
There are no comments for this story
Be the first to respond and start the conversation.